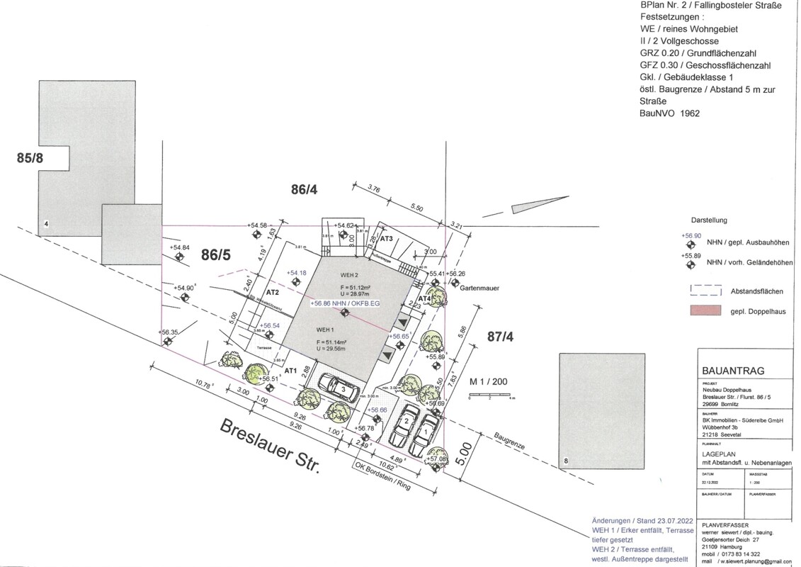
Doppelhaushälfte - Kauf - Bomlitz

Neubau DHH in Bomlitz: Jetzt noch Details mitbestimmen

299.000 €
Bomlitz
Objektart
Haus
Objekttyp
Doppelhaushälfte
Vermarktungsart
Kauf
PLZ
29699
Ort
Bomlitz
Zimmer
3
Schlafzimmer
1
Badezimmer
1
Anzahl sep. WC
1
Wohnfläche
100 m²
Grundstück
508 m²
Etagenzahl
3
Außenprovision
2,98 % inkl. MwSt.

Beschreibung:

Dieses Doppelhaus befindet sich in Kürze im Bau.

Noch haben Sie die Gelegenheit, Details mitzubestimmen. Wir vermarkten beide Haushälften.

Dieses Angebot beschreibt die straßenseitige Haushälfte in der Sackgassenlage.

Lagebeschreibung:

Diese gemütliche und ruhige Sackgassen-Wohnlage bietet alles, was das Herz begehrt. Direkt in einer ruhigen und sicheren Nachbarschaft.

Für den täglichen Bedarf sind die Birken-Apotheke und zwei Restaurants nur einen Katzensprung entfernt. ÖPNV-Haltestellen sind praktisch erreichbar. Mit dem Auto ist man hier schnell auf der Autobahn und der nächste internationale Flughafen ist ca. eine Stunde Fahrt entfernt. Ein ideales Zuhause für Paare, die eine freundliche und praktische Umgebung schätzen und sich nicht um einen großen Garten kümmern möchten.

Die Kernstadt Walsrode bietet darüber hinaus weitere Einkaufsmöglichkeiten sowie Freizeitangebote, wie z.B. Kino, Bowling oder den bekannten Weltvogelpark. Auch weitere Freizeitparks der Lüneburger Heide sind nicht weit: Magic-Park Verden, Serengeti Park Hodenhagen oder der Heide-Park Soltau.

Entfernungen und Fahrzeiten (PKW):

Bad Fallingbostel 7 km (10 Min)
Walsrode 9 km (13 Min)
Soltau 17 km (20 Min)
Bremen 75 km (60 Min)
Hannover 73 km (60 Min)
Hamburg 100 km (70 Min)

Ausstattung:

Kabel Sat TV

Energieausweis:

  • A+
  • A
  • B
  • C
  • D
  • E
  • F
  • G
  • H
0
30
50
75
100
130
160
200
250
>250
Baujahr:
2025
Endenergiebedarf:
74,9 kWh/(m²a)
Energieausweis:
Bedarfsausweis
Energieeffizienzklasse:
B
Energieausweis gültig bis:
01.01.2035
wesentlicher Energieträger:
Luft/wasser Wärmepumpe
Baujahr lt. Energieausweis:
2025

Ausstattungsbeschreibung:

- Haushälfte - Baubeginn in Kürze
- beide Haushälften in der Vermarktung
- große Souterrain-Nutzfläche
- jetzt noch Details mitbestimmen
- Grundstück WEG-geteilt

Sonstige Angaben:

Die vorstehenden, freibleibenden Angaben sind sorgfältig recherchiert und werden ständig aktualisiert. Da sie jedoch ausschließlich auf Auskünften von dritter Seite basieren, wird keine Gewähr, Haftung oder Garantie übernommen. Irrtümer bleiben vorbehalten.

*********************************************************
WICHTIG!
VOR EINEM ANRUF oder Wunsch nach einem Besichtigungstermin möchten wir Ihnen zunächst weitere Informationen als Entscheidungshilfe zusenden. Bitte fordern Sie zunächst das umfangreiche Exposé mit vielen weiteren Fotos, Lagekarten, Energieausweis, vollständigen Grundrissen und Kostenaufstellung an!
Bitte geben Sie hierfür UNBEDINGT Ihre kompletten Kontaktdaten an (vollständige Adressangabe mit):
- Vor- und Zunamen
- Straße mit Hausnummer
- Postleitzahl und Ort
- Telefonnummer

Ihre Angaben werden selbstverständlich vertraulich behandelt.
UNVOLLSTÄNDIGE ANFRAGEN KÖNNEN NICHT BERÜCKSICHTIGT WERDEN!
************************************************************************************************
GEG Pflichtangaben: (basierend auf Luft-/Wasserwärmepume, bei alternativem Energieträger Abweichungen möglich)
Bedarfsausweis, 74,9 kWh/(m²*a), Luft-Wasser-Wärmepumpe, Bj. 2025, Energieeffizienzklasse: B


************************************************************************************************
Die vorstehenden freibleibenden Angaben basieren auf Auskünften des Eigentümers. Die Richtigkeit wurde ausdrücklich NICHT überprüft. Keine Gewähr, Haftung oder Garantie übernommen. Irrtümer bleiben vorbehalten.
************************************************************************************************
Haben auch Sie eine Immobilie zu veräußern oder zu vermieten? Gern unterstütze ich Sie mit einem individuellen Verkaufskonzept: 360°-Rundgänge, Aufbereitung oder Neuerstellung von Grundrissen in 3D, Luftaufnahmen via Foto-Drohne und professionelle Exposés im Digitaldruck sind nur ein kleiner Teil meines engagierten Vermarktungskonzepts.
Lassen Sie sich unverbindlich beraten!

www.remax-krug.de
www.facebook.com
Boris Krug
Boris Krug
RE/MAX - Lizenzmakler
05161 80 681 83
Jeder Lizenznehmer ist ein rechtlich eigenständiges Unternehmen und handelt auf eigene Rechnung und Verantwortung.